海口罗牛山·玖悦台楼盘信息_导航地图_进度通知_工程进度_周边配套_售楼处电话【已认证】
扫描到手机,新闻随时看
扫一扫,用手机看文章
更加方便分享给朋友
089866599665
售楼处电话0898-66599665【售楼中心】【已认证】
营销中心电话0898-66599665【营销中心】【已认证】
开发商营销中心-----欢迎来电预约尊享折扣-----恭迎品鉴
【罗牛山·玖悦台】
世界海口湾芯·臻稀城央恒产

【项目简介】
甄选城心滨海地脉,萃集全球视野,15位业界大师匠心雕琢,海口湾压轴巨著,以世界的标准,敬呈世界的玩家!
项目总占地约60亩,总建面约23万m,分两期开发。一期由两栋高层住宅及商业裙楼组成;二期由2栋高层住宅、2栋其他办公(商办CASA)、1栋5A写字楼及商业配套组成。

【二期基本信息】
1. 总占地面积:约31378.27㎡
2.总建筑面积:约198081.80㎡
3.容积率:4.0
4.绿地率:30%
5.物业费:住宅5.8元/㎡;其他办公4.6元/㎡
6.车位:约1471个
7.总户数:住宅168户,其他办公646户
8.在售产品:5#和6#楼,共18层,为4梯19户,首层为商业及社区配套;2层-18层为CASA产品。
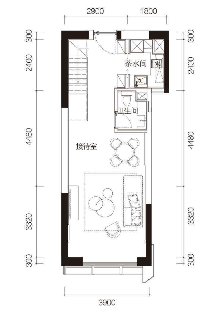
9.主力户型:A户型建面约73㎡,带约5.8米宽景阳台;C户型建面约63㎡,带奢阔落地窗。约5.49米层高设计,可通天然气。

【购买CASA的11大理由】

1. 远见自贸港发展利好:2025 年前启动全岛封关运作,打造实行零关税政策的单独关税区;中央宣布海南单独立法,将来可能获得更多的特殊政策;百强企业入驻,为海南推动总部经济发展打下了坚实的基础,未来发展机遇无限。
2. 傲踞海口湾芯,优享精粹资源:坐拥城市高品质人居板块和国贸、世贸双商圈,拥揽湾区秀美海岸线资源,将城市繁华万象和纯粹自然兼收并蓄。

3. 比邻城市动脉,便捷通达全岛:比邻滨海大道,西至西海岸,东至丘海大道、龙昆北路,海秀快速路(约3km)、海口东站(约6.5km)、海口火车站(约13.4km)、美兰国际机场(约19km)。
4. 执掌城芯万象,多元配套臻享:毗邻国际邮轮母港秀英港;国贸、世贸双商圈交汇;滨海九小、海口中学、海口湾演艺中心等文体环伺;希尔顿、朗庭等星级酒店林立;中海国际广场、海航国际中心等写字楼云集。
5. 千亩公园比邻,“自然”便是一种价值:东邻千亩生态公园万绿园,西近西海岸带状公园、西秀海滩公园,北邻约3.5 公里湾区海岸线自然资源。

6. 15位全球大师,共筑城市荣光:李嘉诚御用设计师梁景华等15位大师联袂匠筑,现代简洁设计风格,首层星级大堂;立面无管化,园林无井化,幕墙体系化,“三化”设计,擎化海口高阶商办版图。
7. 9大TOP创举,诠释海口豪宅高度:下沉式景观会客厅、天际星空双会所、商务写字楼多元互动空间、“行政酒廊式”主题泛会所、臻装地下车库、顶层一户一大堂配置、智慧私密入户社区、匠造艺术园境、全幕墙体系公建化外立面,9大TOP创举,缔造城市封面贵资产。

8. 精致美学园林,匠构高阶生活场景:奥雅景观设计大师李宝章主笔,将建筑与园林精致结合,匠心独运的艺术造景,缔造三季有花,四季有景的园林景观。
9. 罗牛山地产,海南高端地产引领者:海南本土100强企业,是集全类食品供应、现代农业、复合地产、教育科研、文化旅游、多元投资等多元化发展的企业集团,深耕海南22年,开发各类项目100余个,本着对高端生活品质的不懈追求,致力于成长为海南高端地产引领者。
10. 2大个性化物业服务体系,用服务捧出尊贵传奇:嘉逸物业携手龙湖智慧服务、第一太平戴维斯,秉承“一键式管家响应服务+全天候在线”的物业理念,为业主提供“专项服务体系和增值服务体系”2大个性化物业服务。

11.际会自贸港政策红利,资产配置优选:不限购,不限贷,自贸港政策红利下,未来发展潜力巨大。玖悦台·CASA,海口湾臻装商办资产,高阶圈层聚集地,国际自贸港资产配置优选。
【CASA户型品鉴】
•A户型

•A户型实景鉴赏

•C户型

•C户型实景鉴赏

•CASA楼层平面图


•大堂及公区实景鉴赏

•园林实景鉴赏

•泳池实景鉴赏

•营销中心实景鉴赏

售楼处电话0898-66599665【售楼中心】【已认证】
营销中心电话0898-66599665【营销中心】【已认证】
开发商营销中心-----欢迎来电预约尊享折扣-----恭迎品鉴
声明:本文由入驻焦点开放平台的作者撰写,除焦点官方账号外,观点仅代表作者本人,不代表焦点立场。
