三亚中绿馨海家园(售楼处)首页网站_网上售楼电话_开发商物业地址_2025房价排行_海口房产
扫描到手机,新闻随时看
扫一扫,用手机看文章
更加方便分享给朋友
089866567567
地址:海南省三亚市天涯区红塘湾旅游度假区,东侧临近红塘湾七横路

【项目信息】
开发商:三亚中绿园房地产有限公司
占地面积:约3.8万㎡
总建筑面积:约14万㎡
容积率:约3.0
绿地率:约40%
楼栋户数:8栋28层高层住宅及部分配套商业组成,共计1098套安居房,商业19套
停车位:机动车停车位1098个(地下车位940个、地上车位158个),非机动车停车位361个
在售户型:建筑面积约100㎡三房两厅两卫、约120㎡四房两厅两卫
装修标准:硬装修交付(含单体挂式空调)
产权年限:住宅70年、商业40年
交付日期:暂定2023年6月30日
物业公司:海南鲁能物业服务有限公司
【立体便捷交通】
项目落址于红塘湾旅游度假区,毗邻红塘湾七横路,紧邻G225国道、G98环岛高速,依托国道、高速串联凤凰路、三亚湾路、迎宾路,可迅速抵达三亚核心商圈,为居者悦启一城繁华生活。
距离G225国道约500m
距离天涯镇约3.5km
距离三亚湾椰梦长廊约10km
距离青春颂广场约25km
距离蓝海购物广场约27km
纵享醇熟配套
项目周边荟萃卫生院、大型风情购物街、农贸市场等多元配套,中小学学校环伺,医行住娱教配套齐全,享便利无忧生活。
生活配套:天涯镇风情街 、红塘湾度假区商业街、农贸市场、大型超市、银行、邮局等生活配套应有尽有,提供丰富的日常生活服务;
医疗配套:黑土村卫生院、马岭卫生院、三亚市中心医院(规划中)、三亚市第二人民医院(规划中);
教育配套:红塘幼儿园、红塘小学、天涯小学、中央民族大学(三亚)附属中学;
社区配套:建有配套商业约1100㎡,规划有儿童游乐设施、老年活动场地等全龄娱乐运动配套,悦享缤纷休闲生活。
楼栋布局
以南向海景资源为核心,采取板楼行列式布局的形式,阔尺楼间距,将阳光、清风与美景容纳于家中。
园林景观
社区将自然的意境融入到设计中,运用建筑及绿化有致结合,营造都市中生态式住宅景观的自然生活氛围,以“生态自然”“健身漫步”“休闲娱乐”主题,以一中心景观庭院 + 三宅间景观庭院 + 四景观轴线的空间结构,打造多样化住宅空间环境。
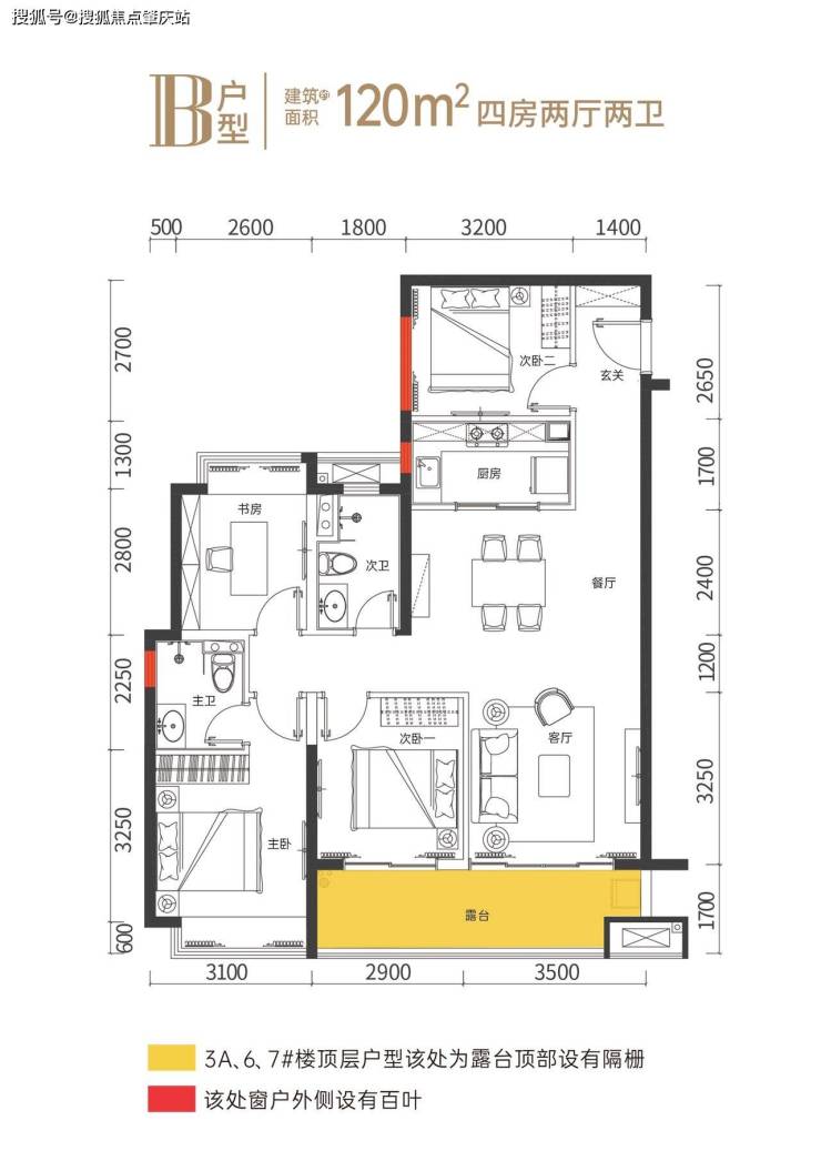
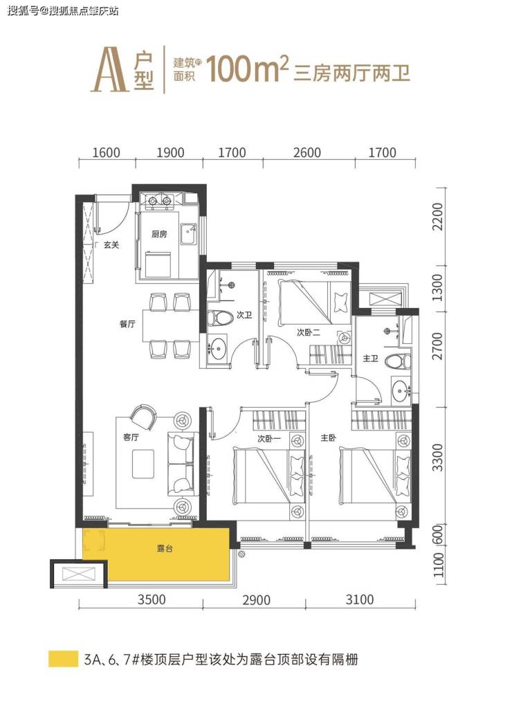
户型赏析
以细节镌刻品质,构建舒适闲逸空间体验,规划两种户型,100㎡三房两厅两卫、120㎡四房两厅两卫。
三房两厅两卫,户型方正,开阔生活视野
纯板结构,类一梯两户设计,享从容出行
南北通透,清风阳光相伴,尽纳山海风光
明厨明卫,南向双飘窗设计,享舒适生活
户型介绍视频,请点击下方
四房两厅两卫,盛纳三代同堂的理想生活
纯板结构,类一梯两户设计,享从容出行
南北朝向、明厨明卫,礼遇明媚理想生活
6.4m宽超大景观阳台、拥揽无尽园林景观
4.6m宽餐厅、阔尺厨房,烹饪幸福的滋味
户型介绍视频,请点击下方
项目园林实拍:
瞰海阳台景观实拍:
中国绿发,以“推进绿色发展,建设美丽三亚”为宗旨,突出“绿色、健康、智能”产品内涵,为居住者打造绿色高品质安居家园!
1. 政府指导价机制
定价标准:项目销售价格实行政府指导价,均价为12800 元 /㎡(含硬装交付),具体房源价格根据楼层、朝向、景观等因素制定一房一价表。
政策依据:根据《海南自由贸易港安居房建设和管理若干规定》,安居房价格需经三亚市发改委、住建局等部门联合审核,不得随意调整。
2. 申报与选房规则
常态化申报:符合条件的申请人可通过 “海易办” APP 提交申请,经资格审核后进入轮候库,等待选房通知22。
选房方式:2025 年 2 月三亚市曾对其他安居房项目开展常态化选房,但中绿馨海家园未参与,目前仍以集中摇号选房为主。
声明:本文由入驻焦点开放平台的作者撰写,除焦点官方账号外,观点仅代表作者本人,不代表焦点立场。
