陵水清水苑开发商售楼处电话➢2026房价➢户型➢交房时间➢楼盘最新动态➢官方发布
扫描到手机,新闻随时看
扫一扫,用手机看文章
更加方便分享给朋友
089866567567
🏖️三亚“清水苑”🏖️


海南清水湾,北纬18°,世界上最美的一条纬度,它把夏威夷、迈阿密、加勒比海、巴厘岛……这些令都市人无限向往的度假胜地钻石般连接起来;在同一纬度,在南中国,这里是“海南最令人期待”的蔚蓝海岸,它有海滨原生态的恬静,天高海阔的纵惰,静于内而动于山水之间的豁达大气,有国际级生活度假的尊贵……海南清水湾以其清澈的海岸线,尊贵的服务设计、便捷的交通位置,时尚的旅游理念引领大三亚滨海休闲旅游新境界,让所有期待光明与希望的人们一起“面朝大海 春暖花开”。

海南清水湾紧邻东线高速公路、海榆东线公路,与三亚市区相距不到40公里,至三亚凤凰机场58公里,距环岛高铁29公里,高速公路、城市轻轨、航空线路,全方位的立体交通网络畅达岛内外。
本项目清水苑位于清水湾里,距海岸线直线距离不到1公里,站在住宅楼上向南眺望,大海尽收眼底,和雅居乐地产清水湾项目相拥为邻。
🏡占地面积:30.45亩
🏡总建筑面积:63210㎡
☘️容积率:2.73
🌳绿地率:54.1%

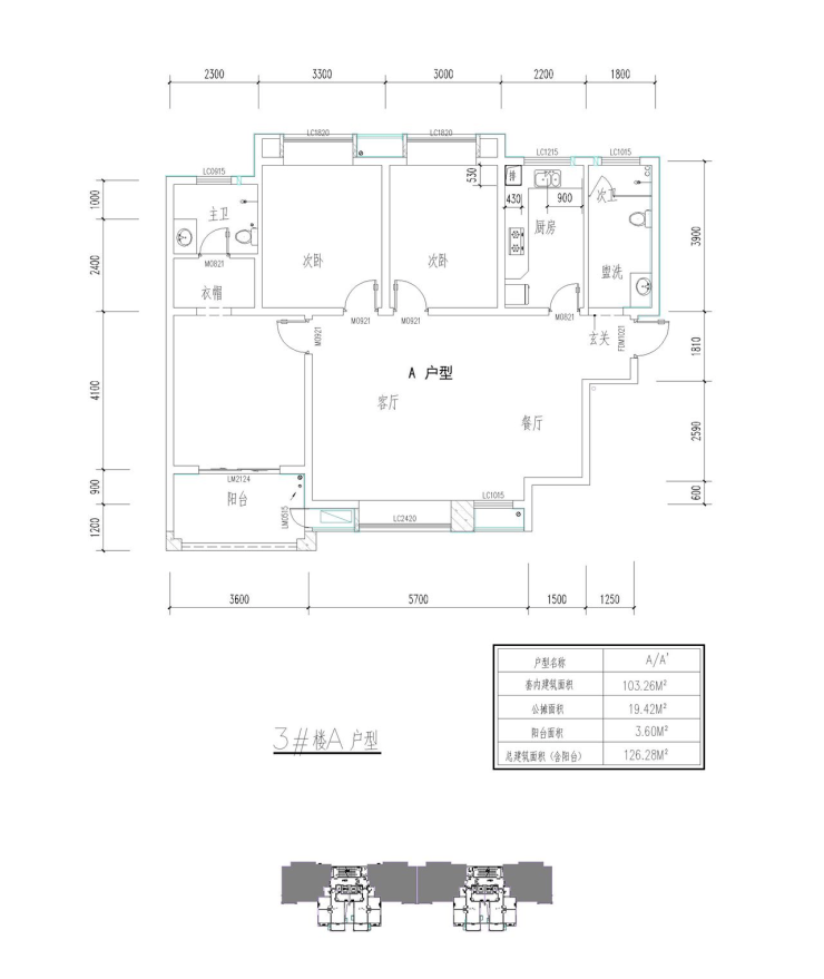
🌟A户型(126.28㎡)

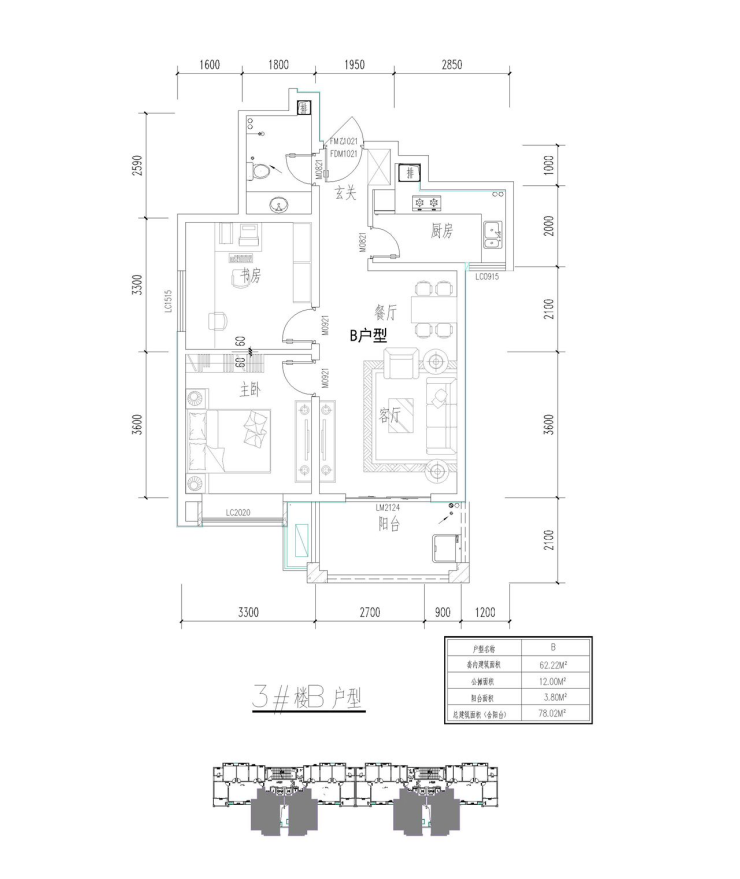
🌟B户型(78.02㎡)

✨效果图示意✨

声明:本文由入驻焦点开放平台的作者撰写,除焦点官方账号外,观点仅代表作者本人,不代表焦点立场。
