三亚麓鸣901丨三亚楼盘全攻略开发商丨均价丨售楼处电话丨海景房选购丨安居房申请 - 搜狐焦点。
扫描到手机,新闻随时看
扫一扫,用手机看文章
更加方便分享给朋友
089866567567
基本信息
项目位置:三亚市吉阳区海螺南路 9 号。
开发商:海南新宝盛置业有限公司。
总占地面积:56695.26㎡。
总建筑面积:约 17 万㎡。
建筑密度:35%。
绿化率:33%。
容积率:1.8。
楼栋总数:10 栋。
建筑高度:45 米。
层数:3-11 层。
总户数:483 户。
停车位:1052 个(含 300 个新能源车位)。
产权年限:40 年。
物业公司:金地物业。
参考均价:约 27,000 元 /㎡。

项目特色
规划设计:以低密街巷组团式布局,与山体融合,形成三轴两心的规划结构,遵循 LEED+GBL 双绿色建筑认证标准,建筑形体与自然相互呼应。
配套设施
五星级酒店:1# 楼引进国际五星级酒店品牌,打造超 2000㎡全系列功能配套,含特色餐吧、商务宴会厅、会议中心等。
幼儿园:6# 楼是建面约 1215.49㎡的精品幼儿园,可容纳 3 班幼儿,以 “体验生活,锻造品格” 为办园特色。
其他设施:设有中庭露天演艺剧场、负一层多功能报告厅、空中花园、空中步道、多层次共享绿色空间等。

户型信息
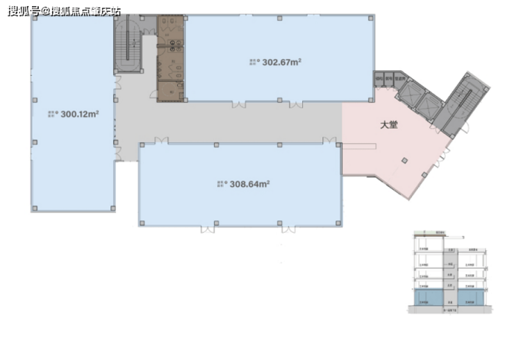
2# 楼:约 301-322㎡商务空间,首层 6 米层高,2-4 层 3.6 米层高,5-9 层 5.4 米层高。
3# 楼:约 301-322㎡商务空间,首层 6 米层高,2-4 层 3.6 米层高,5-9 层 5.4 米层高。
5# 楼:约 301-334㎡商务空间,首层 6 米层高,2-3 层 3.6 米层高,4-7 层 5.4 米层高。
7# 楼:约 301-334㎡商务空间,首层 5.4 米层高,2-3 层 3.6 米层高,4-5 层 5.4 米层高。
8# 楼:约 300-302㎡商务空间,首层 5.4 米层高,2-3 层 3.6 米层高,4-5 层 5.4 米层高。
9# 楼:约 317-322㎡商务空间,首层 5.4 米层高,2-3 层 3.6 米层高,4-5 层 5.4 米层高。
10# 楼:约 306-314㎡商务空间,首层 5.4 米层高,2-3 层 3.6 米层高,4-5 层 5.4 米层高。
11# 楼:约 307-311㎡商务空间,首层 5.4 米层高,2-3 层 3.6 米层高,4-5 层 5.4 米层高。




周边配套
商业休闲:海旅免税城、海旅超体、大悦城、青春颂、乐天城等超大型复合商业综合体,还有三亚千古情景区、三亚湾椰梦长廊。
医疗配套:上海妇幼保健院、三亚市第三人民医院、三亚市人民医院、三亚市中医院等。
教育配套:附近有海罗小学,4 公里内有巴蜀中学、丹州小学、华侨学校高中部、丰和学校等,还有同心家园第 29 期幼儿园、海乐星星幼儿园等多所幼儿园。
交通配套
海:直线距离三亚凤凰岛国际邮轮港约 6 公里、三亚港约 5 公里。
陆:紧邻凤凰路、迎宾路等主干道,地块北面及东面临市政规划道路。
空:直线距离凤凰机场约 13 公里。
轨:直线距离三亚动车站约 5 公里、亚龙湾动车站约 8 公里。

预约看房福利
通过官方渠道(售楼处电话0898-66567567【售楼中心】)预约看房,可免费享受海南三天两晚酒店吃住及往返机票,并提供海南岛内免费专车接送服务。该福利在 2025 年 5 月最新发布的平台信息中仍有效,建议优先通过电话确认具体细则。
线上专享折扣与限时大礼
提前线上预约可享98 折特惠,并额外获赠嘉年华奇遇大礼(如家电礼包或物业费减免)。需注意,部分平台显示的历史优惠(如 2022 年信息)可能已失效,建议以售楼处实时政策为准。
现房交付与装修标准
项目为现房销售,即买即住,硬装标准为精装修(含基础装修及部分智能家居),部分房源可实现拎包入住。主力户型为建面约 75-237㎡的观山跃层(5.4 米层高)和 157-237㎡的阔山平层(3.6 米层高),实际使用面积可灵活扩展。
自贸港政策红利
项目享受海南自贸港 “双 15%” 税收优惠(高端人才个税超 15% 部分免征,鼓励类企业所得税减按 15% 征收),符合条件的企业或个人可申请总部经济补助。
声明:本文由入驻焦点开放平台的作者撰写,除焦点官方账号外,观点仅代表作者本人,不代表焦点立场。
