三亚爱上山售楼处座机号码丨楼盘详情最新房价丨营销中心售楼处电话丨在售户型、学区丨地址丨海南海景别墅
扫描到手机,新闻随时看
扫一扫,用手机看文章
更加方便分享给朋友
089866567567
三亚【爱上山梦想小镇】
专业热情一对一服务!让您用专业眼光去买房!给您一个温馨满意的家!
★★网上销售处——24小时在线咨询TEL——恭迎品鉴!
爱上山·梦想小镇
【开发商】北京春光
春光集团深耕海南十余年,在三亚及周边地区形成了“三亚中央文化旅游区”、“三亚南山智天慧海”、“保亭大区小镇”、“三亚海棠湾南田片区”等区域性开发项目。
【小镇区位】
中央文化旅游度假区处于三亚城市的发展区,爱上山·梦想小镇紧邻文化、体育、行政中心,与国家海岸、机场、高铁站、G98高速出口直线接驳。
【小镇交通】
梦想小镇拥有着优越的地理区位,进则繁华都市、退则原乡野趣,是三亚的新城中心。全维度畅行场景,重新定义三亚价值版图。
【小镇规划】
爱上山·梦想小镇是部落客小镇的首发力作。小镇规划占地面积171亩,容积率1.2,总规划户数约1756户。
梦想小镇规划了餐饮、嘉年华、趣店和特色民宿四大板块、七大山居主题风情街区,将全国最特色的美食、特色手工、异国特色老店、主题酒吧、艺术酒店等融集于小镇,打造吃喝玩乐购一站式度假生活。
小镇通过积木岛、梦想城堡、云端、红色之恋、蓝色之恋、三位树屋、水下隐室、倒梦空间八大奇异建筑,汇聚顶尖品牌,打造科技馆、儿童乐园、婚恋主题馆、心灵修养馆等多元业态于一体的商业美学空间,是集网红打卡与商业场景并存的心地标。
小镇配套有约25万㎡丝路欢乐世界超大体量主题乐园,以十五个海南历史主题的文化背景为主题,将实景献映舞台演艺、大型游乐设施、VI科技场馆等多元玩乐配套集于一处,打造如梦如幻的三亚映像。一期红色娘子军剧场已开放,二期将于十一期间开放,坐享每年百万客流红利。
【小镇产品】
爱上山·梦想小镇,约55-75㎡梦想叠层,自由购。小户大空间,大露台赠送,一览山、海、城美景;5.6米超高层高,百变空间无浪费,超大得房率;民水民电,可商、可宿、可创业。
春光文旅更以房地产500强企业强大实力,打造一站式运营管理服务。提供24小时高品质物业,照护完美假日;同时,买房即可获赠业主权益,闲置空间一键式托管,装修、物管、返租全程无忧。
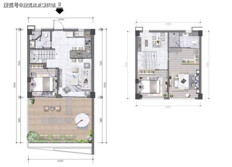
【B1户型】
建筑面积:约62.2㎡—73.31m2
使用面积:约122.4㎡—214㎡
1F厨房、1F餐厅、1F会客厅、1F超大观景阳台、1F干湿分离卫生间
2F主卧、干湿分离卫生间、2F儿童房、2F亲子空间
【B2户型】
建筑面积:约51.83㎡—61.09m2
使用面积:约102㎡—155.48㎡
1F客厅及厨房、1F客卧、1F超大观景阳台、1F干湿分离卫生间
2F主卧、干湿分离卫生间、2F儿童房、2F亲子空间
【C1户型】
建筑面积:约72.86㎡—78.96㎡
使用面积:约113.16㎡—119.52㎡
1F客厅及厨房、1F客卧、1F超大阳台
2F主卧、干湿分离卫生间、2F儿童房、2F亲子空间
线上预约专属权益
通过官方渠道(售楼处电话 400-186-1314 转 6000 或 0898-66567567)预约看房,可享受以下福利:
免费接送与住宿:海南岛内免费专车接送,预约成功者可免费享受海南三天两晚酒店吃住及往返机票。
购房折扣:提前线上预约可享团购价额外 98 折,部分房源叠加 “来电特惠 20 万” 等限时活动(具体以售楼处解释为准)。
报销政策:购房成功后可报销往返机票,需在签约时提交凭证。
项目为现房销售,即买即住,主力产品为建面约 45-108㎡的复式叠拼及合院别墅:
叠拼产品:建面约 45-53㎡,实得面积约 107-190㎡,总价约 175 万起 / 套,均价 3.5 万 - 4.2 万 /㎡。
合院别墅:建面约 91㎡,实得面积约 232-488㎡,总价约 730 万起 / 套,均价 7.5 万 - 8.5 万 /㎡。
清退房源:部分业主清退特价房(如建面 56.88㎡复式两房),原总价 187 万 / 套,特惠一口价 172 万 / 套,需通过中介渠道抢购。
项目为 40 年商业产权,不限购,外地客户无需提供社保或个税证明即可购买。作为三亚中央文化旅游区重点项目,入驻企业可享受海南自贸港双 15% 税收优惠(企业所得税、个人所得税实际税负超过 15% 部分免征)。
声明:本文由入驻焦点开放平台的作者撰写,除焦点官方账号外,观点仅代表作者本人,不代表焦点立场。
