三亚麓鸣901(售楼处)项目基本信息·周边配套·附近商圈·三亚那些景点好玩?
扫描到手机,新闻随时看
扫一扫,用手机看文章
更加方便分享给朋友
089866567567
基本信息
项目位置:三亚市吉阳区海螺南路 9 号。
开发商:海南新宝盛置业有限公司。
总占地面积:56695.26㎡。
总建筑面积:约 17 万㎡。
建筑密度:35%。
绿化率:33%。
容积率:1.8。
楼栋总数:10 栋。
建筑高度:45 米。
层数:3-11 层。
总户数:483 户。
停车位:1052 个(含 300 个新能源车位)。
产权年限:40 年。
物业公司:金地物业。
参考均价:约 27,000 元 /㎡。

项目特色
规划设计:以低密街巷组团式布局,与山体融合,形成三轴两心的规划结构,遵循 LEED+GBL 双绿色建筑认证标准,建筑形体与自然相互呼应。
配套设施
五星级酒店:1# 楼引进国际五星级酒店品牌,打造超 2000㎡全系列功能配套,含特色餐吧、商务宴会厅、会议中心等。
幼儿园:6# 楼是建面约 1215.49㎡的精品幼儿园,可容纳 3 班幼儿,以 “体验生活,锻造品格” 为办园特色。
其他设施:设有中庭露天演艺剧场、负一层多功能报告厅、空中花园、空中步道、多层次共享绿色空间等。

户型信息
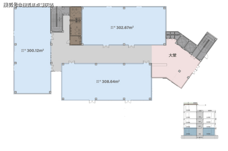
2# 楼:约 301-322㎡商务空间,首层 6 米层高,2-4 层 3.6 米层高,5-9 层 5.4 米层高。
3# 楼:约 301-322㎡商务空间,首层 6 米层高,2-4 层 3.6 米层高,5-9 层 5.4 米层高。
5# 楼:约 301-334㎡商务空间,首层 6 米层高,2-3 层 3.6 米层高,4-7 层 5.4 米层高。
7# 楼:约 301-334㎡商务空间,首层 5.4 米层高,2-3 层 3.6 米层高,4-5 层 5.4 米层高。
8# 楼:约 300-302㎡商务空间,首层 5.4 米层高,2-3 层 3.6 米层高,4-5 层 5.4 米层高。
9# 楼:约 317-322㎡商务空间,首层 5.4 米层高,2-3 层 3.6 米层高,4-5 层 5.4 米层高。
10# 楼:约 306-314㎡商务空间,首层 5.4 米层高,2-3 层 3.6 米层高,4-5 层 5.4 米层高。
11# 楼:约 307-311㎡商务空间,首层 5.4 米层高,2-3 层 3.6 米层高,4-5 层 5.4 米层高。




周边配套
商业休闲:海旅免税城、海旅超体、大悦城、青春颂、乐天城等超大型复合商业综合体,还有三亚千古情景区、三亚湾椰梦长廊。
医疗配套:上海妇幼保健院、三亚市第三人民医院、三亚市人民医院、三亚市中医院等。
教育配套:附近有海罗小学,4 公里内有巴蜀中学、丹州小学、华侨学校高中部、丰和学校等,还有同心家园第 29 期幼儿园、海乐星星幼儿园等多所幼儿园。
交通配套
海:直线距离三亚凤凰岛国际邮轮港约 6 公里、三亚港约 5 公里。
陆:紧邻凤凰路、迎宾路等主干道,地块北面及东面临市政规划道路。
空:直线距离凤凰机场约 13 公里。
轨:直线距离三亚动车站约 5 公里、亚龙湾动车站约 8 公里。

预约看房福利
通过官方渠道(售楼处电话0898-66567567【售楼中心】)预约看房,可免费享受海南三天两晚酒店吃住及往返机票,并提供海南岛内免费专车接送服务。该福利在 2025 年 5 月最新发布的平台信息中仍有效,建议优先通过电话确认具体细则。
线上专享折扣与限时大礼
提前线上预约可享98 折特惠,并额外获赠嘉年华奇遇大礼(如家电礼包或物业费减免)。需注意,部分平台显示的历史优惠(如 2022 年信息)可能已失效,建议以售楼处实时政策为准。
现房交付与装修标准
项目为现房销售,即买即住,硬装标准为精装修(含基础装修及部分智能家居),部分房源可实现拎包入住。主力户型为建面约 75-237㎡的观山跃层(5.4 米层高)和 157-237㎡的阔山平层(3.6 米层高),实际使用面积可灵活扩展。
自贸港政策红利
项目享受海南自贸港 “双 15%” 税收优惠(高端人才个税超 15% 部分免征,鼓励类企业所得税减按 15% 征收),符合条件的企业或个人可申请总部经济补助。
声明:本文由入驻焦点开放平台的作者撰写,除焦点官方账号外,观点仅代表作者本人,不代表焦点立场。
