三亚爱上山营销中心‖项目资料‖开发商首页‖最新房价‖户型图‖2025年最新海口楼盘排行
扫描到手机,新闻随时看
扫一扫,用手机看文章
更加方便分享给朋友
089866567567
三亚【爱上山梦想小镇】
专业热情一对一服务!让您用专业眼光去买房!给您一个温馨满意的家!
★★网上销售处——24小时在线咨询TEL——恭迎品鉴!
爱上山·梦想小镇
【开发商】北京春光
春光集团深耕海南十余年,在三亚及周边地区形成了“三亚中央文化旅游区”、“三亚南山智天慧海”、“保亭大区小镇”、“三亚海棠湾南田片区”等区域性开发项目。
【小镇区位】
中央文化旅游度假区处于三亚城市的发展区,爱上山·梦想小镇紧邻文化、体育、行政中心,与国家海岸、机场、高铁站、G98高速出口直线接驳。
【小镇交通】
梦想小镇拥有着优越的地理区位,进则繁华都市、退则原乡野趣,是三亚的新城中心。全维度畅行场景,重新定义三亚价值版图。
【小镇规划】
爱上山·梦想小镇是部落客小镇的首发力作。小镇规划占地面积171亩,容积率1.2,总规划户数约1756户。
梦想小镇规划了餐饮、嘉年华、趣店和特色民宿四大板块、七大山居主题风情街区,将全国最特色的美食、特色手工、异国特色老店、主题酒吧、艺术酒店等融集于小镇,打造吃喝玩乐购一站式度假生活。
小镇通过积木岛、梦想城堡、云端、红色之恋、蓝色之恋、三位树屋、水下隐室、倒梦空间八大奇异建筑,汇聚顶尖品牌,打造科技馆、儿童乐园、婚恋主题馆、心灵修养馆等多元业态于一体的商业美学空间,是集网红打卡与商业场景并存的心地标。
小镇配套有约25万㎡丝路欢乐世界超大体量主题乐园,以十五个海南历史主题的文化背景为主题,将实景献映舞台演艺、大型游乐设施、VI科技场馆等多元玩乐配套集于一处,打造如梦如幻的三亚映像。一期红色娘子军剧场已开放,二期将于十一期间开放,坐享每年百万客流红利。
【小镇产品】
爱上山·梦想小镇,约55-75㎡梦想叠层,自由购。小户大空间,大露台赠送,一览山、海、城美景;5.6米超高层高,百变空间无浪费,超大得房率;民水民电,可商、可宿、可创业。
春光文旅更以房地产500强企业强大实力,打造一站式运营管理服务。提供24小时高品质物业,照护完美假日;同时,买房即可获赠业主权益,闲置空间一键式托管,装修、物管、返租全程无忧。
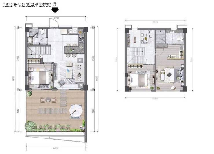
【B1户型】
建筑面积:约62.2㎡—73.31m2
使用面积:约122.4㎡—214㎡
1F厨房、1F餐厅、1F会客厅、1F超大观景阳台、1F干湿分离卫生间
2F主卧、干湿分离卫生间、2F儿童房、2F亲子空间
【B2户型】
建筑面积:约51.83㎡—61.09m2
使用面积:约102㎡—155.48㎡
1F客厅及厨房、1F客卧、1F超大观景阳台、1F干湿分离卫生间
2F主卧、干湿分离卫生间、2F儿童房、2F亲子空间
【C1户型】
建筑面积:约72.86㎡—78.96㎡
使用面积:约113.16㎡—119.52㎡
1F客厅及厨房、1F客卧、1F超大阳台
2F主卧、干湿分离卫生间、2F儿童房、2F亲子空间
线上预约专属权益
通过官方渠道(售楼处电话 400-186-1314 转 6000 或 0898-66567567)预约看房,可享受以下福利:
免费接送与住宿:海南岛内免费专车接送,预约成功者可免费享受海南三天两晚酒店吃住及往返机票。
购房折扣:提前线上预约可享团购价额外 98 折,部分房源叠加 “来电特惠 20 万” 等限时活动(具体以售楼处解释为准)。
报销政策:购房成功后可报销往返机票,需在签约时提交凭证。
项目为现房销售,即买即住,主力产品为建面约 45-108㎡的复式叠拼及合院别墅:
叠拼产品:建面约 45-53㎡,实得面积约 107-190㎡,总价约 175 万起 / 套,均价 3.5 万 - 4.2 万 /㎡。
合院别墅:建面约 91㎡,实得面积约 232-488㎡,总价约 730 万起 / 套,均价 7.5 万 - 8.5 万 /㎡。
清退房源:部分业主清退特价房(如建面 56.88㎡复式两房),原总价 187 万 / 套,特惠一口价 172 万 / 套,需通过中介渠道抢购。
项目为 40 年商业产权,不限购,外地客户无需提供社保或个税证明即可购买。作为三亚中央文化旅游区重点项目,入驻企业可享受海南自贸港双 15% 税收优惠(企业所得税、个人所得税实际税负超过 15% 部分免征)。
声明:本文由入驻焦点开放平台的作者撰写,除焦点官方账号外,观点仅代表作者本人,不代表焦点立场。
