佛山龙光·玖誉台售楼处电话-楼盘详情-最新相关信息-营销中心位置-首页网站-价格-户型图-容积率@2025.12.5售楼处发布
扫描到手机,新闻随时看
扫一扫,用手机看文章
更加方便分享给朋友
075787736888
【龙光·玖誉台】
魁奇中轴 东平河畔 中心纯住区
中芯爆款户型 约100㎡南北对流双阳台三房
约98-140㎡ 臻装三四房 准现楼 今年买房今年住

【龙光玖誉台】中芯纯住区 首选玖誉台
亮点一:中芯地段魁奇中轴核心,纯粹成熟居住板块
雄踞禅城中心魁奇中轴—广佛融城主动脉,约20min直达广州南站。项目周边均为成熟品牌高端小区,临近东平河属高端滨江住宅区,城市界面干净整洁,一站式醇熟配套。

亮点二:双地铁交汇,4站到桂城,7站直达广州南
项目距离湾华站直线距离800米,湾华站作为地铁2号线和3号线交汇的重要站点。
地铁2号线和3号线已开通,1站佛山新城,4站桂城,5站祖庙,7站直达广州南站。

亮点三:两横两纵快速路网,快捷到达各个中心
两横三纵快速路网(魁奇路、东平大道、佛山大道、岭南大道、南海大道),快速抵达广佛各中心

亮点四:直线距离600米直达东平河,高端滨江居住区
东平河滨江公园,三园贯通在建,佛山新港改造项目即将完工,预计今年开放,约25万方城市会客厅即将形成;
项目距离东平河直线距离600米,畅享河滨公园绿色生活。

亮点五:一站式醇熟生活配套,两大商场环绕,衣食住行一一满足
临近天虹广场及新DNA广场,超10万㎡商业Mall,涵盖吉之岛、星巴克、海底捞等各大品牌店,丰富商业中心体
项目旁希尔顿酒店,周边是成熟居住小区,醇熟的底商配套、包含各业态,衣食住行,出门即可一一满足

亮点六:周边省级名校环绕,无忧教育资源
①12年一站式省一级名校资源,澜石小学、澜石中学、佛山市第三中学等均为优质学校,且佛山实验学校、佛山华英学校也已纳入项目就学范围
②项目旁为政府机关幼儿园分园,已封顶,预计今年开学,提供420个市直幼儿园学位,且项目旁利乐包装厂学校地块预计今年动工。

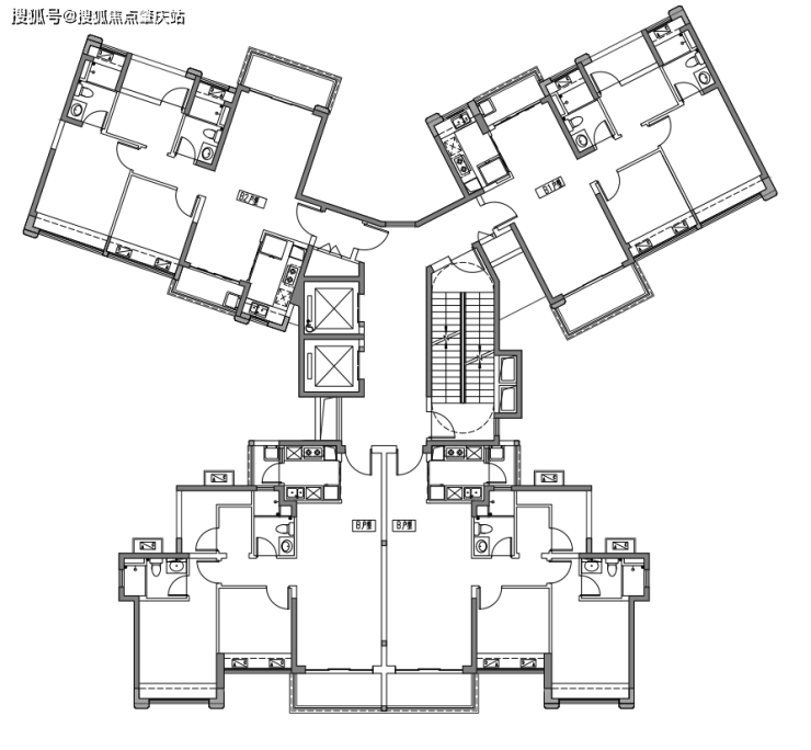
【2栋户型鉴赏】:
①2栋楼层平面图:2梯4户,直面中央园林景观

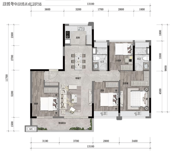
【123㎡四房两厅两卫】明星四房产品,超4米开间景观阳台,约3.2米开间生活阳台,南北对流,通风采光优渥

【112㎡四房两厅两卫】罕见112㎡户型四房产品,约3.7米开间,3.4米主卧开间

【98平三房两卫】超3.6米开间景观阳台,3面朝南,通风采光优渥,使用率超90%

【4栋户型鉴赏】
2梯4户,低密舒适,最为安静、楼间距最开阔、最无遮挡、视野最好的楼栋
最靠近小区里面,不受遮挡,更好的通风和采光
优质视野和景观,高层瞰江远眺东平河

【约101㎡纯改善三房】市面上唯一的南北对流双阳台的三房,市面最好的三房户型,稀缺户型,卖一套少一套

【板楼户型鉴赏】
14层板楼产品,小高层,低密舒适
两梯两户,私密性和尊贵感更强
全南向南北对流双阳台产品
【约140㎡】一梯一户全南向小高层板楼

【约130㎡】一梯一户全南向小高层板楼

声明:本文由入驻焦点开放平台的作者撰写,除焦点官方账号外,观点仅代表作者本人,不代表焦点立场。
